Val di Prato, Vallemaggia, Ticino, 2018. Ristrutturazione ed ampliamento capanna alpina:
Nella capanna, situata lungo il Rii della valle di Prato, affluente della Maggia, scoppiò un incendio nel 2017. Per sistemare i danni causati dal fuoco e per un ampliamento della capanna, proprietà della Società Alpinistica Valmaggese (SAV), è stato indetto un concorso.
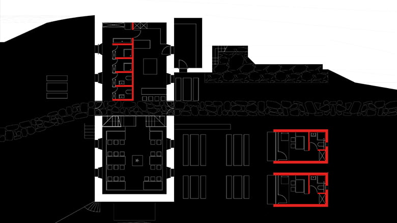
Il progetto prevede la ricostruzione degli elementi di carpenteria bruciatisi. L’occasione viene colta anche per riorganizzare parzialmente l’edificio. Il sentiero prosegue all’interno, dividendo trasversalmente il piano terra: da un lato la sala da pranzo, dall’altro i servizi. Inoltre, viene aggiunto un ampliamento, costituito da due piccoli edifici prefabbricati sempre dedicati ad ospitare gli escursionisti. La loro posizione aiuta a definire lo spazio esterno della capanna, raccogliendolo in un cortile.




